创业失败成500斤网红,马桶被坐碎,他把35㎡蜗居变成跳舞房

本期的装修改造,
是挑战史上最重的业主李达,
“510斤的网红主播”。
设计师如何实现35㎡一室一厅,巧变6居室?
2016年,一年的时间他的体重增加300斤,目前已经达到510斤,腰围1米九。骤胖让他在家里遭遇很多尴尬和不便。他希望能够通过改造,打造一个能让自己重燃希望的家。

改造前后对比
1
35平住3口人 打造多功能“可以跳舞的家”
李达一家3口,住在哈尔滨南岗区一处老旧小区一楼,35平一室一厅一卫。曾经作为母亲的婚房,装修老旧,常年昏暗潮湿,储物空间严重不足。

其实,李达以前是一个舞蹈编导,曾风光一时。但是一切改变发生在2015年。2015年4月,李达做生意赔钱,欠下40万元。而此时因为生活压力太大,妻子也跟他离了婚。李达因为打击过大,无法走出抑郁,开始了每天白天睡觉,晚上出去喝酒暴饮暴食的生活。就这样一年多的时间,李达由原来的200多斤变成了510斤,体重暴增了近300斤!

李达体重暴增之后,家里基本没有适合李达的家具,床被无情的压塌数次,凳子、马桶盖也都被坐碎。不得已,李达只能跟父亲住在卧室大床,床体被用各种柱子支撑加固,母亲只能住客厅小床。李达体型过于庞大,在家里行动十分不便,为了方便走路,家里的门和柜子基本都被拆除。

在零下20度的极端天气里,当设计师遇上“最灵活的胖子”,会碰撞出怎样的火花?

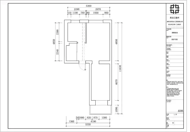
原平面图

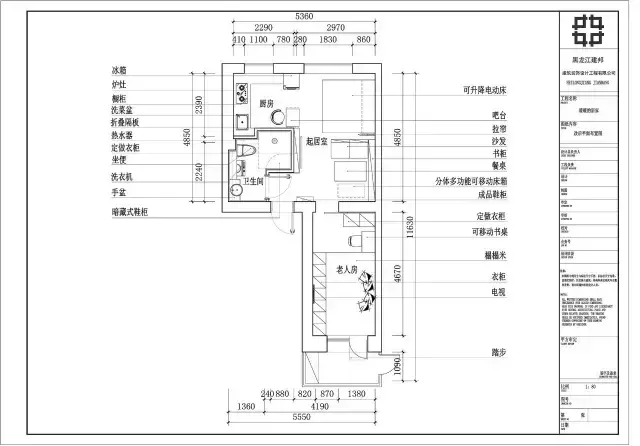
改造后平面图
2
设计、施工阶段状况连连 业主又提出设计难题
在这里的案例中,设计师孙宏伟决定打破常规,把一居室变成六个功能区。即卧室、工作室、茶室、影院、舞台、还有西餐厅。可说起来容易,设计起来难。

冬季施工遇到了前所未有的难题,因为李达家在哈尔滨一处老旧小区,地板下面是埋满管道的地沟,使得家里潮气上泛,异味不断。铺设地暖时,遭遇哈尔滨极寒天气,因为李达家阳台墙体太薄,无法抵御寒风,地暖刚通水,就被冻上了!工长用喷灯烤了一宿才使得冰体融化。

不仅施工当中问题不断,李达又突然提出要给母亲做东北大炕的想法。
REVIEW
◆
改造难点
01
阴暗潮湿,墙面斑驳脱落

装修老旧,常年昏暗潮湿。
02
卧室狭长,不易改造

改造前卧室的宽度只有2米,而整个卧室的面积只有11平米。放下一个宽度1米8的床,几乎没有空间。床体没有床头,不坚固,用各种柱子支撑。
03
缺乏储物空间

家里的储物空间严重不足,只有一个大衣柜。洗手间、卧室的墙壁全都挂满了衣服,家里就像是干洗店。
04
阳台漏风严重,无法利用

在卧室的外面有一个小阳台,但是通往阳台的路被封死,仅留一个窗户。只能从楼的外侧进入,阳台基本只具有储物功能。因为窗户封闭不严,墙体较薄,漏风严重,卧室与客厅温差竟达6度!
05
普通家具难以支撑过重的身体

家里基本没有适合李达的家具,床被无情的压塌数次,凳子、马桶盖也都被坐碎。
06
卫生间狭小,马桶尺寸不合适

改造前的卫生间只有2平米,没有热水器,也无法在家里洗澡。在李达的意识中“上厕所”等于“扎马步”,生怕马桶被坐坏。
07
厨房台面过宽,橱柜设计不合理

在厨房,每次拿上层橱柜的东西,都是手还没到,肚子就先上桌,做饭的时候经常把炒锅顶下灶台,十分危险。下层橱柜的东西更是无法下身,只能坐在凳子上取物。
08
客厅功能区混乱

改造前的客厅只有15.1平米,和体格如此庞大的李达相比显得格外狭小。而客厅更是功能区划分紊乱,既是吃饭、会客、李达的直播间、同时又是母亲睡觉的地方,毫无隐私!
3
设计师24小时 不断发现新秘密
设计师决定打破常规,把一居室变成六个功能区。即卧室、工作室、茶室、影院、舞台、还有西餐厅。

REVIEW
◆
装修改造后
1
客厅


之前功能区划分紊乱的客厅,改造后功能划分明确,色彩明暗搭配为“网红主播”李达创造出了优越的工作环境。

改造后的门厅
2
老人房

满足了李达母亲想要拥有一个东北大炕的心愿。


3
厨房

合理的尺度把控让李达在伸手拿东西的时候更加方便,易打扫的材质让厨房更加干净整洁。

4
卫生间

加宽加大的马桶让李达不再有后顾之忧。

卫生间安装热水器,做了干湿分离,从此在家里可以沐浴。
5
舞台&卧室

设计师孙宏伟希望李达可以将自己的舞蹈之路继续走下去。

李达的卧室,抬头便可仰望星空。

6
阳台

采用新型材料,更加挡风隔热,有效抵御冬天的寒冷。
REVIEW
◆
暖心设计
1
精心准备相片墙

用画的形式精心记录下生活的点滴。
2
利用座椅空间隐藏的鞋柜

3
利用重体泡沫打造重体沙发

4
安装可随意放置刀具的洞洞板

5
在橱柜内安装收纳的装置

6
增添无动力新风设计

7
改造后增添影院模式

一家人欢聚一堂看电视。
蜗居也能变豪宅 ↓ ↓ ↓ 点下方“了解更多”,立领设计师300名业主名额0元全屋设计
↓↓