五层别墅不多见,2款五层别墅介绍给你,来看看它的优点在哪里
五层别墅不多见,2款五层别墅介绍给你,来看看它的优点在哪里
现在农村虽然别墅不少,但是五层别墅还是少见的。五层别墅不说别的,就是从外观上看就很大气,引人注目,令人称赞。而且由于空间足够,可以设置更多的功能房间,提供舒适全面的生活家居体验。
五层的别墅户型比较少见,先给大家来介绍两款吧!
户型一
对称的外观设计,暖色调的装饰风格,在阳光下分外亮眼。室内布局完美体现了空间大的好处,电梯的布置更是方便了日常生活起居。

一层基本建筑情况:1堂屋、1客厅、1餐厅、1厨房、1棋牌室、2卧室、2卫生间。

二层基本建筑情况:1健身区、1书房、1卧室、2卫生间。

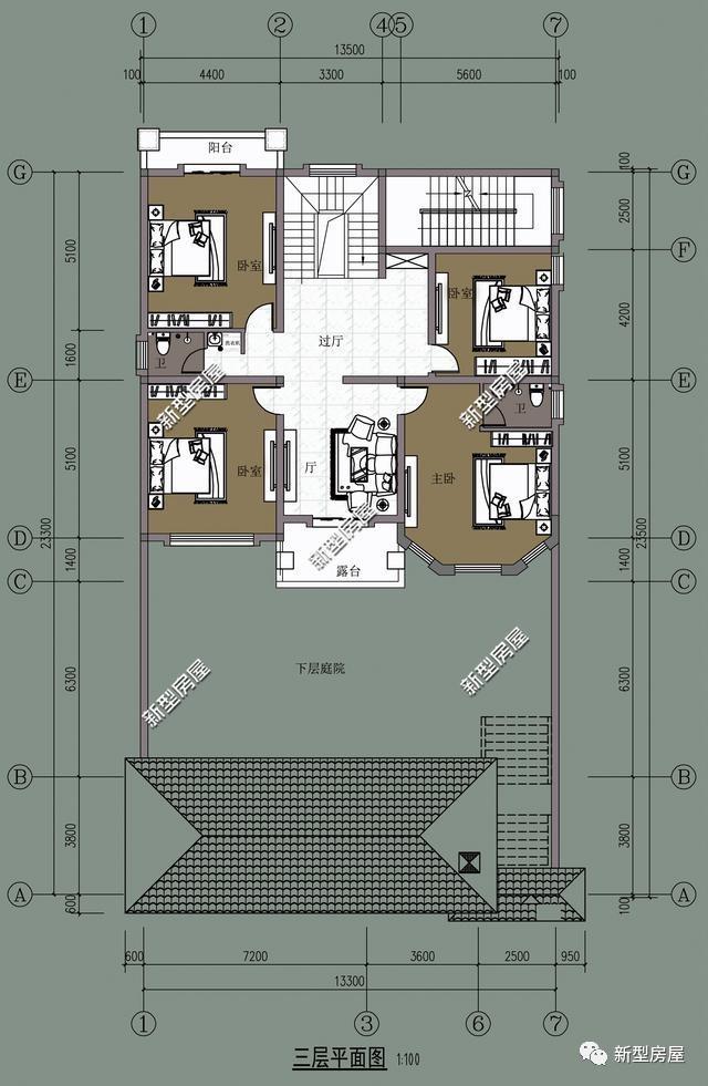
三层基本建筑情况:1茶室、4卧室、2衣帽间、2卫生间。

四层基本建筑情况:1茶室、4卧室、2衣帽间、2卫生间。

五层基本建筑情况:1露台、4备用间、2卫生间。

户型二
这栋别墅自带庭院,给了家人小孩舒适放松的空间,方正的设计,得体大方。内部设计可供三户人家独立生活起居,也是本栋别墅一大亮点。

一层基本建筑情况:2影音室、1储藏间、1客厅、1专用房间、2卫生间。

二层基本建筑情况:1厨房、1餐厅、1茶厅、1门厅、2卧室、1娱乐室。

三层基本建筑情况:4卧室、1客厅、2卫生间。

四层基本建筑情况:4卧室、1厨房、1餐厅、1客厅、2卫生间。

五层基本建筑情况:3卧室、1厨房、1餐厅、1客厅、2卫生间、1露台。

这两套五层别墅有你喜欢的么?喜欢就转发吧!
右上角关注,更多经典户型和农村建房案例。
标签:
99
煤矿惨案:16名矿工不幸失去生命 “矿难!矿难!”2023年9月24日上午,一场可怕的煤矿事故在贵州盘关镇山脚树煤矿爆发,整个矿区瞬间陷入混乱。16名勇敢的矿工,他们的命运在这一...
136
关于情人节的诗句 1、众里寻他千百度,蓦然回首,那人却在,灯火阑珊处。 2、烟外柳丝湖外水,山眉澹碧月眉黄。 3、缘散份尽,奈何爱情弄人。 4、谁忍窥河汉,迢迢问斗牛。关于...
190
「夜读·诗」《五月的麦地》作者:海子;朗读:篁竹瑾 《五月的麦地》 作者:海 子 朗读:篁竹瑾 全世界的兄弟们 要在麦地里拥抱 东方 南方 北方和西方 麦地里的四兄弟 好兄弟 回...
201
石榴的寓意是什么你知道吗?来看看它背后的故事 不同的事物往往有着不同的寓意,这里来介绍一下石榴的寓意。 石榴里面有许多一颗颗红色的果实,这也就象征着多子多福。为什么...
145
神十七乘组太空菜园欣赏:蔬菜长势喜人,航天员边摘边吃 大家好!今天我给大家带来了一组令人惊叹的照片!你有没有想过,在太空也能种出美味的蔬菜?没错,就是中国航天科技集...
86
湖南科技学院好吗?宿舍环境怎样?有空调吗? 学校坐落在国家历史文化名城——永州市零陵区。 现建有14个教学学院,52个普通本科专业,涵盖经济学、法学、教育学、文学、理学、...
83
创造101第二季导师名单是谁 迪丽热巴担任创造101第二季发起人 [闽南网] 《创造101》这档节目已经结束好几个月时间了,目前在腾讯V视界大会上,公布了《创造101》第二季将出男版,并...
150
生命的代价 人来到世上,就付出了沉重的代价。母亲用她那常人难以体会的代价孕育了幼小的生命,襁褓坠地的声声啼哭又蕴含着母亲的辛酸。 给予生命的母亲之伟大,毋庸置疑。伟...
85
国内最值得看的9个法律案例查询网站 来源:做个快乐的躺赢人 1.中国裁判文书网 中国裁判文书网,是中华人民共和国最高人民法院2013年建立的全国法院统一的裁判文书公开平台,也是...
128
LOL要出官方小说了,还是起点大神骷髅精灵执笔 在前两天的LPL七周年庆典上,《英雄联盟》官方宣布了首部正版授权小说的计划。这部名为《英雄联盟:我的时代》的长篇电竞小说将于...
184
“没有为什么”千万不是“No why”!英语中根本没这个说法! 大家在聊天的时候经常会穿插几句英文,比如你很low啊,或者有朋友问你为什么,你随口就来一句:No why. 但你说的很多英...
212
一位难求!为进国家烟草局送礼45万,结果惨遭欺骗 近期,教育博主张雪峰关于国家烟草局的一番评论冲上热搜:“想进烟草系统,连报考的机会都没有!”这一番言论,既表明了报考...
92
帅得掉渣 周润发年轻时的帅照 周润发出生于农村家庭,从小帮母亲打零工贴补家用,生活清苦,却也乐在其中。1965年,即周润发10岁时,全家搬到九龙,读中学的3年里,周润发每个暑...
215
省级非遗《苏六娘传说》,雷浦苏六娘确有其人,故事可歌可泣 苏六娘这个名字可谓家喻户晓,早在上世纪50年代,姚璇秋、洪妙等潮剧表演艺术家早年表演的实景潮剧《苏六娘》唱响...
211
牧羊人之心魔物排行榜 这个最值得培养的魔物你有吗 牧羊人之心是近期非常火爆的一款手游,引起了许多小伙伴们的追捧,而牧羊人之心游戏中的魔物可谓是不可或缺的一个玩法,游...
219
窥灵君分享凉拌火腿简单的做法,下酒又开胃,味道清爽不油腻 大家好我是窥灵君,关注我,教你做简易版美食做法,开心每一天。 一场完美的聚餐除了有着压轴味美的大菜和汤品,...
65
国家市场监管局连发两函:君乐宝食品安全管理存缺陷 6月29日,君乐宝因食品安全管理制度问题,被国家市场监局管理局连发两函点名批评。 国家市场监管局对河北君乐宝君源乳业、...
196
儿童急腹症:睾丸附件扭转的超声图像 辛瑞,战略支援部队特色医学中心(原306医院),超声诊断科 医研部医学科普中心 刘燕/崔彦 编辑 睾丸附件扭转临床表现 睾丸附件扭转少儿多见...
172
“战略忽悠局局长-张召忠”到底什么来头? 。 张召忠是中国知名度最高的军事评论家,没有之一。与大部分正襟危坐、训练有素、老是在军事节目里低头看稿的嘉宾不同,张召忠语言...
144
重庆高校宿舍条件大曝光,你认为哪所大学环境更好? 重庆2021年高考录取已接近尾声了,相信很多考生都已经拿到大学录取通知书,等待着9月的开学了吧! 开学之前,你了解过自己学...